4K 3D RENDERING 20SQM_ Granny flat sleep 20SQM_ Granny flat sleep out-interior  render
 
2 1 1 1  
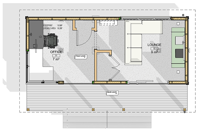
Plan code:- MD300/20A
Building footprint: 20SqM
 
No Building consent required
contact us for more info on this plan

 

What's included in stock
plan set of 24 sheets.

  • Ground floor dimension plan
  • Sub-floor framing / foundation plan
  • Roof plan
  • Roof framing plan
  • Proposed Electrical plan
  • Elevations x4
  • Proposed framing elevations x4
  • Sections x3
  • Typical joinery details
  • Typical roofing details
  • E2/AS1 Compliant & NZS code compliant detailing
  • Material costing schedules

Why choose a Stock Plan?

1. Reduced Design Costs.
2. Efficient Use of Architectural Services
3. Accelerated Project Time-line
4. Scalability and Flexibility

What's not included in
our stock plans sets.

 

Purchase options available <20Sqm Designs

    • OPTION A:-
      PDF SET- $300.00
      Currently discounted @ 25% now only $225.00

    • OPTION B:-
      C.A.D FILES- $300.00
      C.A.D file format available
      (DXF / DWG /IFC)
      Currently discounted @ 20% now only $240.00

    • OPTION C:-
      RVT BASE FILE- $1000- complete RVT File
      Currently discounted @ 35% now only $650.00

 

Scroll to Top