
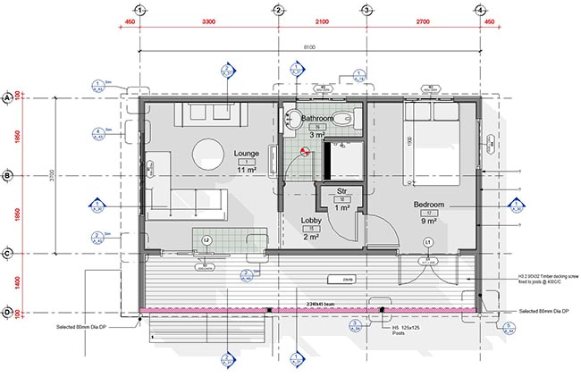
Why choose a Stock Plan?
1. Reduced Design Costs.
2. Efficient Use of Architectural Services
3. Accelerated Project Time-line
4. Scalability and Flexibility
|
Purchase options available <30Sqm Designs
- OPTION A:-
PDF SET-
$299.00
- OPTION B:-
RVT BASE FILE-
$749 (GST incld)
Provides flexibility for external consultants to make any necessary changes prior to lodging at local authorities?
|