RESIDENTIAL ARCHITECTURAL PROJECTS
Piha   (Double garge-minor dwelling 74M² Beach holiday escape)

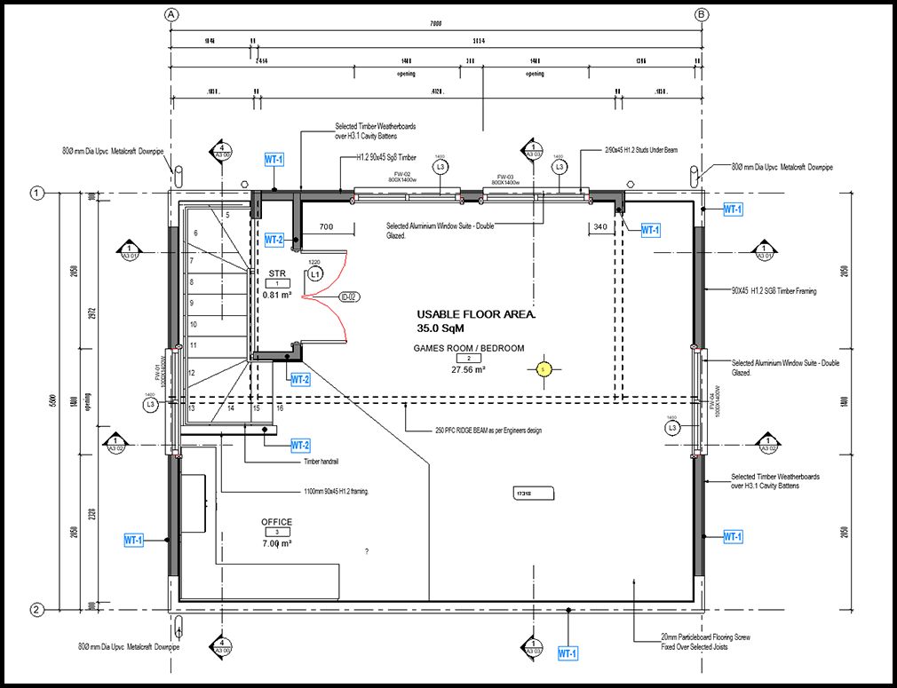
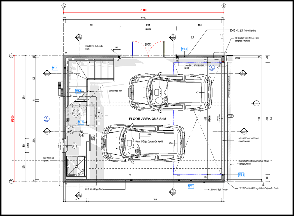
DOUBLE GARAGE & LOFT MINOR DWELLING  FLOOR PLAN

DOUBLE GARAGE & LOFT MINOR DWELLING  FLOOR PLAN
 DOUBLE GARAGE & LOFT MINOR DWELLING  FLOOR PLAN

DOUBLE GARAGE & LOFT MINOR DWELLING  OPEN PLAN LIVING

DOUBLE GARAGE & LOFT MINOR DWELLING  OPEN PLAN LIVING

 


Scroll to Top