RESIDENTIAL ARCHITECTURAL PROJECTS
Weiti Bay   (190M² Beach holiday home)

STOCK PLAN_Beach house render
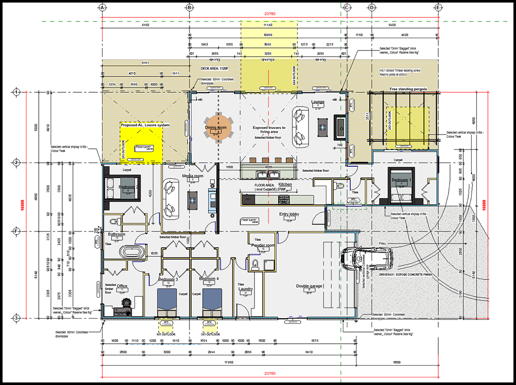
STOCK PLAN_beach house floor plan

STOCK PLAN_beach house elevations

LAN_Beach house interior render

LAN_Beach house interior render

Scroll to Top